Kompakti Aurora
4h+k+s+ph+khh+wc+tekn.tila
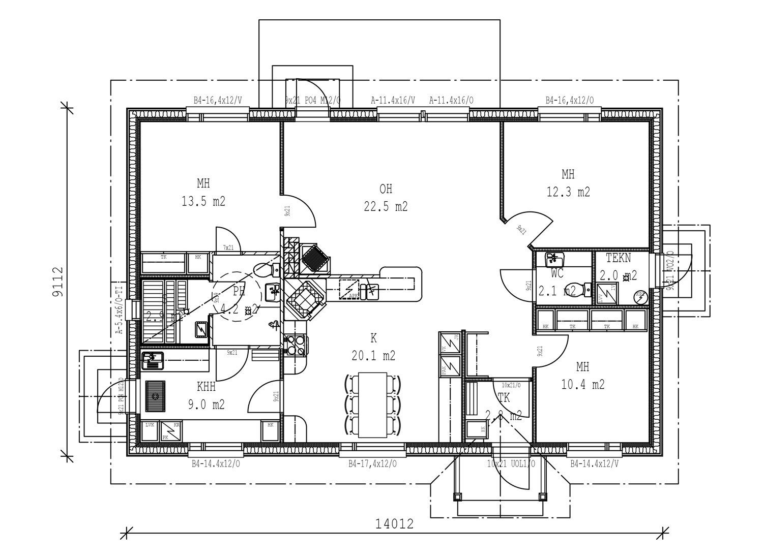
Aurora-talon pohjaratkaisussa on kolme tilavaa makuuhuonetta. Valoisasta olohuoneesta on käynti suoraan takapihan terassille. Taloon on mahdollista ostaa erikseen varaava takka, joka lämmittää tehokkaasti ja näin ollen pitää sähkönkulutuksen maltillisena
talvellakin.
Hyvää rakennustapaa noudattaen valmistettu kotimainen puurunkoinen ja puuverhoiltu Aurora-talo, joka on Precut-menetelmällä paikalle rakennettu. Tiivis kokonaisuus saumattomalla höyrynsululla. Lämmöneristeet seinissä (300 mm) ja yläpohjassa (500 mm) pitävät talon energiataloudellisena. Miellyttävä vesikiertoinen lattialämmitys ja nykyaikainen ilmanvaihto/viilennys. Pihat tasattuina, 1-tariffi sähkö, sähköistysluokka 1, kunnallistekniikka. Aurora-talo on yksi malleista, jonka Raksa Veet rakentaa Precut-menetelmällä.
Huoneistoala
109 m²
(+ Tekn.tila 2 m²)
Kerrosala
128 m²
(123 m²)
Hinta


























