Hurmaava Ilona
4h+k+s+ph+khh+2 wc+2 vh+tekn.tila
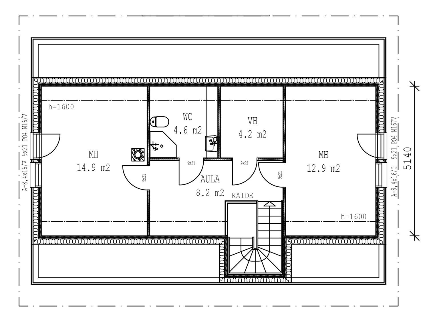
Ilonasta löytyy kolme tilavaa makuuhuonetta, joista yksi on
alakerrassa ja kaksi yläkerrassa. Kumpaankin kerrokseen sijoitetut vaatehuoneet tuovat mukavasti lisää säilytystilaa. Terassille on kulku kätevästi sekä olohuoneesta että kodinhoitohuoneesta. Terassin kautta kulku tekniseen tilaan.
Hyvää rakennustapaa noudattaen valmistettu kotimainen
puurunkoinen ja puuverhoiltu Ilona-talo, joka on Precut-menetelmällä paikalle rakennettu. Tiivis kokonaisuus saumattomalla höyrynsululla.
Lämmöneristeet seinissä (300 mm) ja yläpohjassa (500 mm) pitävät talon energiataloudellisena. Miellyttävä vesikiertoinen lattialämmitys ja nykyaikainen ilmanvaihto/viilennys. Pihat tasattuina, 1-tariffi sähkö, sähköistysluokka 1, kunnallistekniikka. Ilona-talo on yksi malleista, jonka Raksa Veet rakentaa Precut-menetelmällä.
Huoneistoala
135 m²
Alakerta 88,5
m² ja
yläkerta 46,5 m²
(+Tekn.tila 2 m²)
Kerrosala
152 m²
(Alakerta 104
m²
Yläkerta 48 m²)
Hinta



























