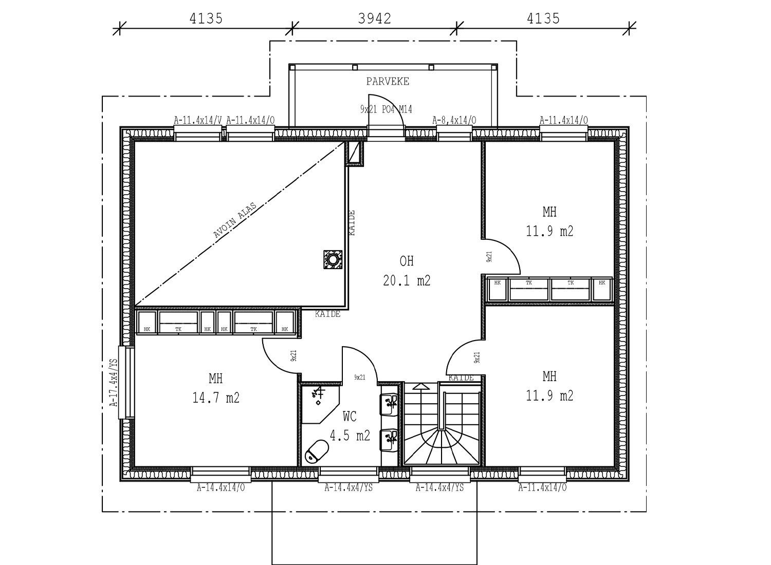
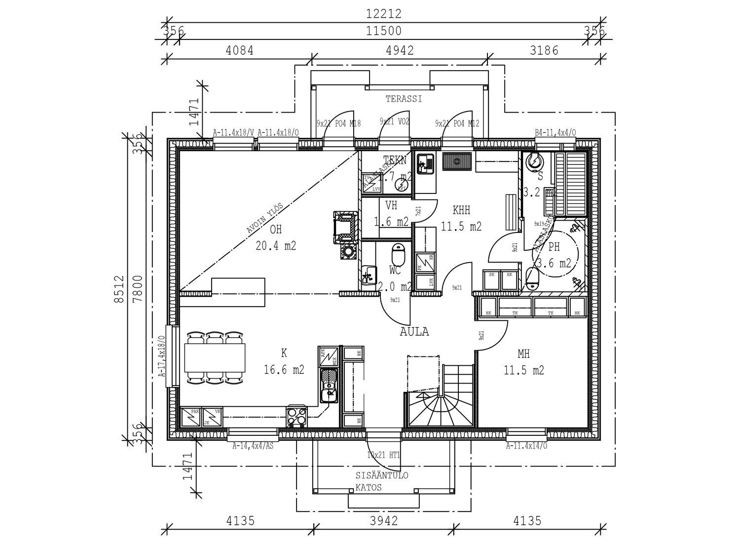
Ylellinen Karoliina
6h+k+s+ph+khh+2 wc+vh+parveke+tekn.tila
Tämä loistokas Karoliina-talo tarjoaa avaraa tilaa ja asumismukavuutta. Kattoon asti avonainen valoisa alakerran olohuone yhdistyy sulavasti keittiöön luoden ison yhteisen tilan. Yläkerran avarasta oleskelutilasta näkymät alakerran olohuoneeseen ja käynti parvekkeelle. Tässä talossa
viihtyy isompikin perhe!
Hyvää rakennustapaa noudattaen valmistettu kotimainen
puurunkoinen ja puuverhoiltu Karoliina-talo, joka on Precutmenetelmällä paikalle rakennettu. Tiivis kokonaisuus saumattomalla höyrynsululla. Lämmöneristeet seinissä (300 mm) ja yläpohjassa (500 mm) pitävät talon energiataloudellisena. Miellyttävä vesikiertoinen lattialämmitys ja nykyaikainen ilmanvaihto/viilennys. Pihat tasattuina, 1-tariffi sähkö, sähköistysluokka 1, kunnallistekniikka. Karoliina-talo on yksi malleista, jonka Raksa Veet rakentaa Precut-menetelmällä.
Huoneistoala
151,5 m²
Alakerta 86,6
m² ja
yläkerta 64,9 m²
(+Tekn.tila 1,7 m²)
Kerrosala
175,3 m²
(Alakerta 99,6
m²
Yläkerta 75,7 m²)
Hinta



























