Kodikas Liisa
6h+k+s+ph+khh+2 wc+vh+parveke+tekn.tila
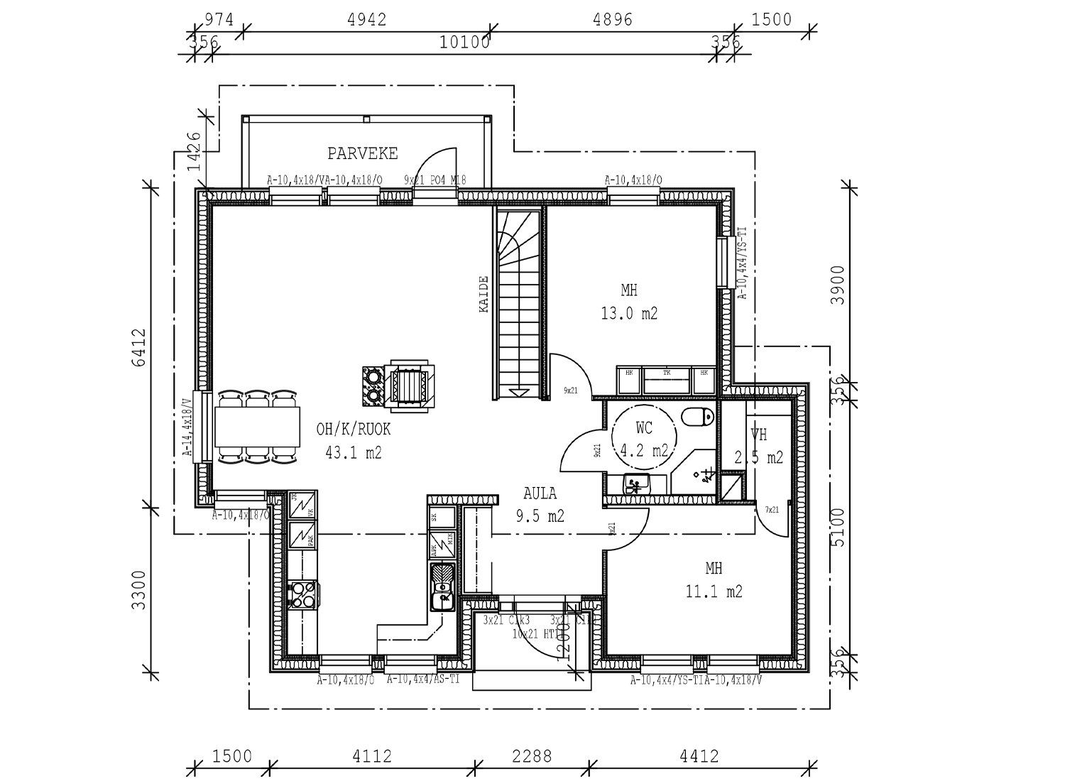
Mukavan kodikas Liisa-talo tarjoaa modernia asumismukavuutta kahdessa kerroksessa. Alakerrassa on kaksi makuuhuonetta ja tunnelmallinen takkahuone kylpytilojen yhteydessä. Viihtyisä yhteinen tila muodostuu yläkerran olohuoneen ja ruokailuhuoneen yhdistelmästä. Lämpöä varaava takka on ostettavissa erikseen.
Hyvää rakennustapaa noudattaen valmistettu kotimainen
puurunkoinen ja puuverhoiltu Liisa-talo, joka on Precut-menetelmällä paikalle rakennettu. Tiivis kokonaisuus saumattomalla höyrynsululla. Lämmöneristeet seinissä (300 mm) ja yläpohjassa (500 mm) pitävät talon energiataloudellisena. Miellyttävä vesikiertoinen lattialämmitys ja nykyaikainen ilmanvaihto/viilennys. Pihat tasattuina, 1-tariffi sähkö, sähköistysluokka 1, kunnallistekniikka. Liisa-talo on yksi malleista, jonka Raksa Veet rakentaa Precut-menetelmällä.
Huoneistoala
141 m²
Alakerta 55
m² ja
yläkerta 85,5 m²
(+Tekn.tila 2,4 m²)
Kerrosala
175,3 m²
(Alakerta 38,5
m²
Yläkerta 101 m²)
Hinta


























