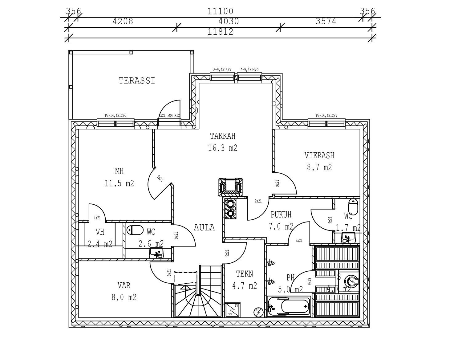
Monipuolinen Matilda
6h+k+s+ph+pukuh+2 wc+2 vh+parveke
+varasto+tekn.tila
Alakerran tilat ovat monipuolisesti muunneltavissa erilaisten
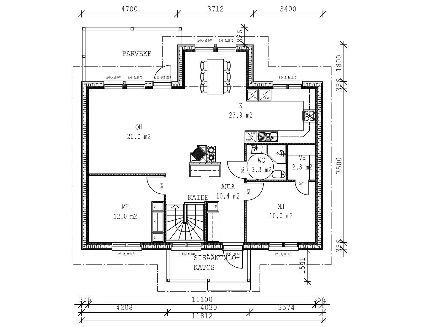
käyttötarpeiden mukaisesti. Yläkerran suuri ja avara yhteinen tila muodostuu olohuoneen, keittiön ja ruokailutilan yhdistelmästä. Lämmintä tunnelmaa tuo entisestään varaava takka, joka on ostettavissa erikseen. Matilda-talosta löytyy tilaa isollekin perheelle sekä vieraille!
Hyvää rakennustapaa noudattaen valmistettu kotimainen
puurunkoinen ja puuverhoiltu Matilda-talo, joka on Precutmenetelmällä paikalle rakennettu. Tiivis kokonaisuus saumattomalla höyrynsululla. Lämmöneristeet seinissä (300 mm) ja yläpohjassa (500 mm) pitävät talon energiataloudellisena. Miellyttävä vesikiertoinen lattialämmitys ja nykyaikainen ilmanvaihto/viilennys. Pihat tasattuina, 1-tariffi sähkö, sähköistysluokka 1, kunnallistekniikka. Matilda-talo on yksi malleista, jonka Raksa Veet rakentaa Precut-menetelmällä.
Huoneistoala
158 m²
Alakerta 73
m² ja
yläkerta 85 m²
(+Tekn.tila 4,7 m² ja
varasto 8 m²)
Kerrosala
142 m²
(Alakerta 46
m²
Yläkerta 95,5 m²)
Hinta


























