Persoonallinen Susanna
6h+k+s+ph+khh+2 wc+parveke
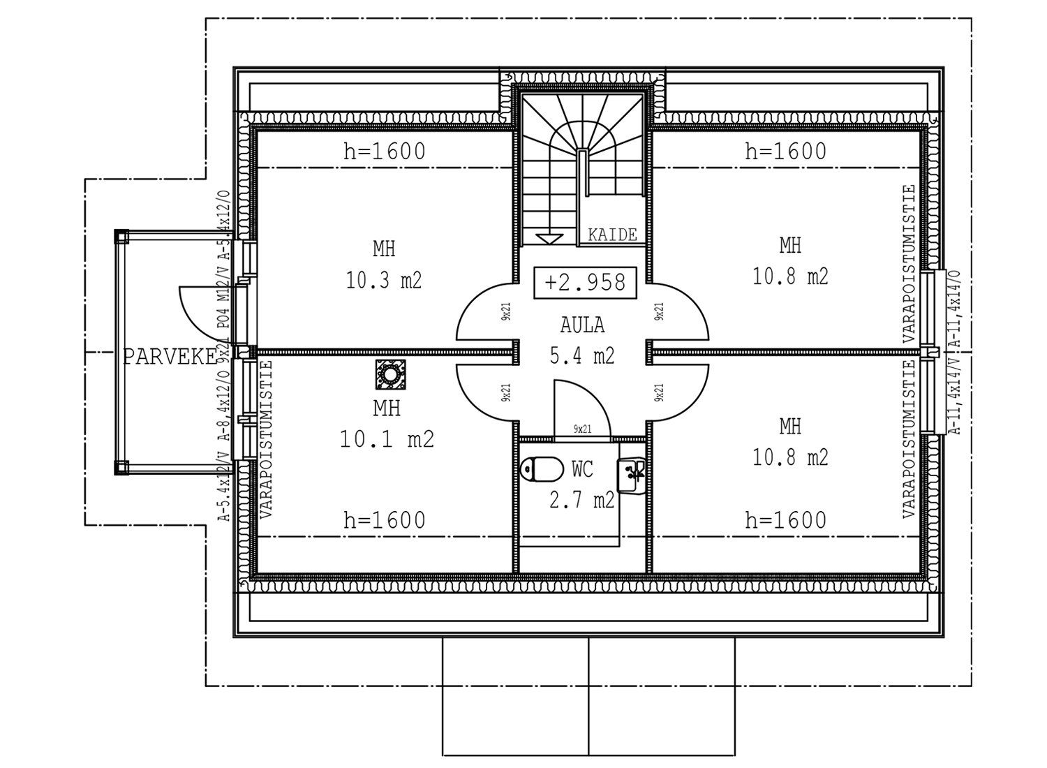
Tästä persoonallisesta 1,5-kerroksista Susanna-talosta löytyy tilaa suurellekin perheelle. Keittiössä mahtuu useampikin kokki hääräämään ja ruokailutilasta on avarat näkymät kolmeen eri suuntaan. Neljä makuuhuonetta on sijoitettu yläkertaan ja kahdesta on pääsy yhteiselle parvekkeelle.
Hyvää rakennustapaa noudattaen valmistettu kotimainen
puurunkoinen ja puuverhoiltu Susanna-talo, joka on Precutmenetelmällä paikalle rakennettu. Tiivis kokonaisuus saumattomalla höyrynsululla. Lämmöneristeet seinissä (300 mm) ja yläpohjassa (500 mm) pitävät talon energiataloudellisena. Miellyttävä vesikiertoinen
lattialämmitys ja nykyaikainen ilmanvaihto/viilennys. Pihat tasattuina, 1-tariffi sähkö, sähköistysluokka 1, kunnallistekniikka. Susanna-talo on yksi malleista, jonka Raksa Veet rakentaa Precut-menetelmällä.
Huoneistoala
134 m²
Alakerta 81,5
m² ja
yläkerta 52,5 m²
Kerrosala
153 m²
(Alakerta 104
m²
Yläkerta 48 m²)
Hinta



























